Représentations de filetages

Bonjour à tous,

J’aimerais faire appel à votre expérience pour comprendre les représentations de filetages sur les mises en plan. Venant d’Inventor où ça fonctionne sans aucun problème/nuance/subtilité, en arrivant sur Solidworks ce fut très frustrant pour moi de voir que :

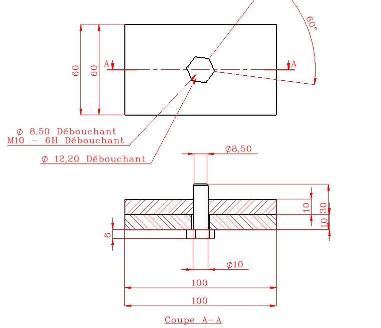
  • Tous les filetages apparaissent, même au travers des composants lorsque je suis en Qualité ébauche dans l’option « Affichage des représentations de filetage »
    image

  • Tous les filetages disparaissent quand je suis en Haute qualité dans cette même option.

C’est incompréhensible. C’est tout l’un ou tout l’autre, et franchement c’est très énervant de voir que d’autres logiciels le gèrent correctement depuis des années. Je ne comprends pas pourquoi par défaut le logiciel n’affiche pas uniquement les filetages lorsqu’ils sont coupés ou visibles dans le plan de création (et oui j’ai déjà coché l’option qui porte ce nom mais ça ne change strictement rien).

Est-ce que vous avez ce cas de votre côté ? Si oui, avez vous trouvé une solution pour palier à ce problème ?

Merci d’avance pour vos réponses.

Bonjour rbessonnet,

Pour afficher la représentation des filets, il faut aller dans le 3D de la pièce et vérifier dans la fonction filetage, si c’est bien coché pour la représentation.
Ensuite dans MEP, quand tu insères te cotes cotes n’oublie pas de cocher la représentation des filets.
Ça devrait le faire.
Je te ferais passé des captures d’écrans après ça. (SW 2022SP4)
@+.
AR.






Voir aussi si c’est la MEP d’une pièce ou d’un assemblage.
Sujet évoqué récemment sur le forum

1 « J'aime »

Bonjour,

Les filetages sont un des gros points noirs de SW : il les gère proprement seulement quand il en a bien envie.
Les nouvelles fonction ne fonctionnent pas vraiment mieux que les anciennes annotations : les filets apparaissent/disparaissent toujours suivant leur bon vouloir.

1 « J'aime »

Très (trop) vaste sujet;

Solidworks a toujours été dans le bas du classement pour les mises en plans et pour les représentations « symboliques ». Et, comme à leur habitudes, plutôt que de résoudre un problèmes ils (les programmeurs en rajoutent une couche).

Concernant plus précisément ta demande:

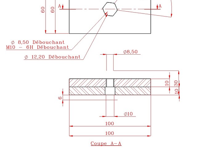
  • Pour les artefacts de filets dans les vues 3D ou Isométriques:
    image
    => Il faut décocher l’option : Représentations de filetage ombrées

image
(parfois le seul fait de décocher cette case résout le problème et il ne réapparait plus lorsqu’elle est réactivée, mais là tout vas dépendre de votre carte graphique).

Concernant les mises en plan: (cela dépendra plus des options réglées dans vos modèles):

Dans tous les cas il y à beaucoup de facteurs et de variables à prendre en considération:

  1. Votre carte graphique Versus Votre version de Solidworks.
  2. Votre quantité de RAM (Solidworks se permet de décocher certaines options s’il estime utiliser trop de RAM).
  3. La Qualité et les Options des vos modèles de Documents.
  4. le type de la fonction utilisée pour vos taraudages (assistant de perçage; Représentation de filetages; perçages avancés, filetages…)
    image
  5. Les entité visibles ou cachées…

Et j’en passe.

3 « J'aime »

A_R,

De mon côté l’option sur la fonction 3D est bien présente par défaut, j’avais déjà vérifié ça.

Pour ce qui est de l’option sur la mise en plan, pas de changement lorsque j’active l’option et que je sélectionne la fonction.

Froussel,

C’est en effet ce que j’ai cru comprendre. C’était tellement bien géré sur Inventor (on utilisait la version 2012 en plus…)

Maclane,

J’ai feuilleté un peu vos lien, essayé tout plein de choses mais visiblement, c’est beaucoup trop compliqué à gérer pour SolidWorks, rien y fait.

Souvent rééditer soit l’annotation de filetage, soit la fonction dans le 3D permet enfin de voir apparaitre l’annotation dans le 2D.

2 « J'aime »

En effet, l’affichage des filetages est parfois très aléatoire. En généra je règle ça en faisant ça:
Insertion / objets du modèle / représentations de filetages (la case à cocher est présente dans la partie annotation uniquement s’il y a des filetages dans votre modèle)

Pour enlever les artefacts (genre filetage qu on ne devrait pas voir) je cache la vue dans l’arbre puis je la ré affiche et là, miracle : elle se met a jour

@o_hazard_vfc

Une autre astuce consiste à basculer le mode d’affichage : image filaire / image ombrée. Le résultat est identique à cacher / montrer : cela force SW à recalculer et ça peut fonctionner (ou pas … :sleepy: )